














Información:
Año: 2022
Locación: Lucerna, Suiza
Proyecto: Topotek 1
Rol de Felipe Vallina: Arquitecto colaborador – Líder del equipo de proyecto
Visualización: Nightnurse Images
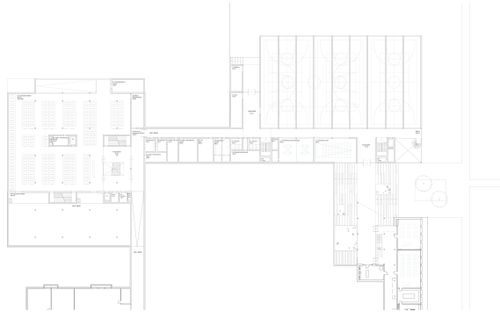
El encargo proponía una ampliación del campus escolar de Reussbühl. El proyecto da respuesta a esta necesidad a partir de dos nuevos edificios complementarios que dialogan entre sí. Por un lado, un edificio educativo de densidad media y estructura compacta, organizado en torno a un gran atrio central, que aporta luz natural y continuidad espacial a las nuevas aulas y áreas comunes. Con estructura completamente propuesta en madera, y una envolvente metálica que combina ritmo y textura, el nuevo edificio escolar se erige como nuevo punto de referencia en el paisaje. Junto a él, un pabellón deportivo semi-enterrado se inserta suavemente en el terreno, ampliando la plaza central existente y fortaleciendo el vínculo entre la escuela y el paisaje circundante. La propuesta busca equilibrar escala, funcionalidad y apertura, consolidando una plataforma cívica activa donde educación, deporte y comunidad se entrelazan. Como encargado del proyecto, mi participación abarcó el desarrollo arquitectónico general de ambos volúmenes, la definición del programa completo, de las lógicas para circular y moverse dentro del complejo, y la elaboración de representaciones para comunicación del proyecto.